設計方案
武漢佳馨花園二期地暖設計方案-武漢舒適家菲斯曼地暖
作者: 添加時間:2018-8-4 10:01:00 瀏覽:
武漢佳馨花園二期地暖設計方案-德國菲斯曼WH1D24KW原裝進口壁掛爐+德國曼瑞德分集水器+喬治費歇爾PERT地暖管
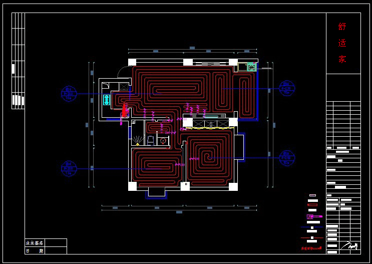
設計要求:傳統(tǒng)濕式地暖采暖,智能分室控制,地暖管道間距要求200mm。
地暖管:采用DN16喬治費歇爾PERT地暖管,設計間距為200,客餐廳用兩個回路,回路長度為82m,65m;兩個房間長度分別為73m,82m。
分集水器控制部分:采用4路曼瑞德智能分集水器+曼瑞德4個電動執(zhí)行器。
溫控器:采用德國曼瑞德溫控器3個,分別放置于房間和客廳。

采暖裝修布置圖

